Cultura

Se iniciaron las obras del nuevo multiespacio cultural Nave 8

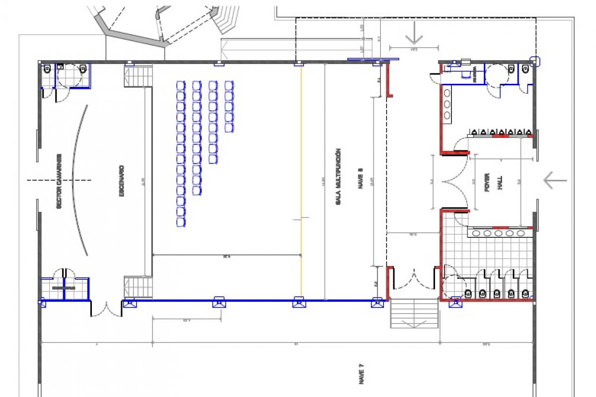
Martín Piaggio recorrió el inicio de las obras, en los Galpones del Puerto, donde se construirá la nueva sala cultural de la ciudad. El multiespacio, Nave 8 es una novedosa propuesta de la Municipalidad que tendrá una capacidad de 250 butacas

09 de Marzo 2023 gualegualeguaychú365


El intendente Dr. Esteban Martín Piaggio junto al secretario de Obras Públicas, Carlos García y el subsecretario de Planeamiento Urbano, Pablo Bugnone recorrieron el inicio de las obras del nuevo multiespacio cultural en los Galpones del Puerto, la Nave 8.

 

Las obras en la Nave 8 incluyen la optimización de ese sector de los Galpones del Puerto y dotarlo de un portal de ingreso, camarines, sanitarios, escenario y de todas las instalaciones necesarias para el funcionamiento de una sala con capacidad de 250 butacas, donde se podrán realizar obras de teatro, conciertos, proyección de películas, congresos y todo tipo de actividad cultural.

 

El pasado 17 de febrero en el marco de la visita del ministro de Cultura de la Nación, Tristan Bauer, donde se hizo efectiva la entrega de equipamiento tecnológico para la nueva sala también se asumieron compromisos para avanzar en las obras que ya se iniciaron, en aquella oportunidad Bauer expresó “vamos a seguir acompañando con aportes económicos para el desarrollo de esta nueva propuesta, entendiendo la importancia que este tipo de salas significan para la difusión y expansión de nuestra cultura y también como fuente de trabajo para nuestros jóvenes” en tanto que el intendente Piaggio había dicho “Estamos muy contentos de poder recibir en nuestra ciudad al Ministro de Cultura de la Nación, es un orgullo poder dar a conocer nuestra cultura, nuestras raíces”, luego de destacar el acompañamiento a la ciudad a través de inversiones directas del gobierno nacional y continuó “seguimos trabajando para que Gualeguaychú tenga un nuevo espacio cultural, en un lugar estratégico, como lo es el Paseo del Puerto, con acceso libre y gratuito” para finalizar “tenemos una gran expectativa de poder iniciar pronto las obras con el acompañamiento del gobierno nacional y sumar asi un nuevo dispositivo para la cultura gualeguaychuense”


Buscar noticias

AGENDA
  • AGENDA

    Martes 23 de Diciembre - 21:15HS.

    Gualeguaychú Cinema

  • AGENDA

    Martes 17 de Febrero - 12:24HS.

    Matecito: El Corso Verdadero — Ensayo fotográfico de Joaquín García

  • EVENTOS TURISTICOS

    Jueves 02 de Abril - 14:00HS.

    Segunda edición de Pueblos y Sabores

  • EVENTOS TURISTICOS

    Viernes 10 de Abril - 10:00HS.

    Primera edición de Custom Car Expo Auto en Gualeguaychú

  • EVENTOS TURISTICOS

    Viernes 13 de Noviembre - 14:00HS.

    Gualeguaychú confirmó que será la sede de la Expo Moto 2026

FARMACIAS DE TURNO
Hoy 21 de Diciembre

San José

25 de Mayo 602

426101

Farmachú

1º Junta 827

3446-323214

Mañana

Medrano

Rocamora y Bolivar

424090

La Floral

Primera Junta 519

430405